Caluire-et-Cuire entre Vernay et Le Bourg, lumineux T3/T4 de 72m² traversant E/O au sein d’une résidence familiale, bien entretenue, fermée et sécurisée avec de beaux espaces verts.
Idéal résidence principale ou investisseur / Non soumis à l’encadrement des loyers.
Ce bien est déjà équipé d’un double vitrage PVC neuf, présente un DPE classé D et la copropriété vient de voter sa rénovation énergétique : ravalement des façades avec isolation par l’extérieur, isolation des planchers bas des caves, installation d’une ventilation hygroréglable, etc.
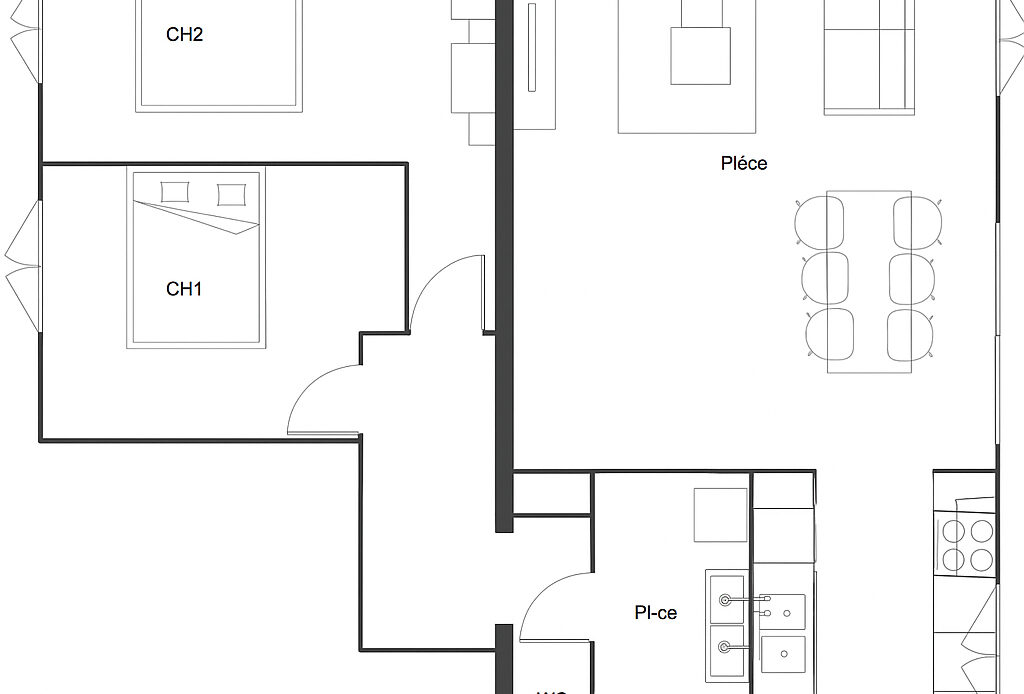
Cet appartement bien agencé et sans perte d’espace se compose :
– d’une pièce de vie de 29m².
– d’une cuisine ouverte et entièrement équipée.
– de deux chambres de 10 et 14m².
– d’une salle de bains avec emplacement lave-linge/sèche linge. WC séparés.
Actuellement agencé en T3, cet appartement est facilement transformable en T4 par le bais du séjour double existant.
Cet appartement dispose d’une cave en sous-sol inclus dans le prix, ainsi qu’un accès au parking collectif et au parc de la copropriété. Possibilité d’acquérir un garage au sein de la copropriété.
Emplacement de qualité à proximité immédiate de toutes les commodités :
– Proximité immédiate de Lyon en transports en commun avec lignes de bus à 200 mètres : Bus 9 (Direction Foch, Hôtel de Ville…), Bus 33 (Direction Croix-Rousse), Bus 38 (Direction Gare Part-Dieu), Bus 77 (Direction Fontaines-Saint-Martin)…
– Commerces essentiels (boulangerie, supermarché, fleuriste, etc.) à deux pas.
– Ecoles maternelles et élémentaires, collège et lycée à moins de 10 minutes à pied.
Bien soumis au régime de la copropriété. Pas de procédure en cours.
Charges mensuelles : 205 euros comprenant les charges de copropriétés, de bâtiment, de gardiennage, de chauffage et d’eau froide.
Montant estimé des dépenses annuelles d’énergie pour un usage standard : entre 820 euros et 1150 euros par an. Prix moyens des énergies indexés sur l’année 2021 (abonnements compris).
« Les informations sur les risques auxquels ce bien est exposé sont disponibles sur le site Géorisques (C. envir., art. R. 125-25, I).
Copropriété de 152 lots (Pas de procédure en cours).
Charges annuelles : 2460 euros.
[dpe value=”185″ inline=”true”/] [ges value=”28″ inline=”true”/]










































